A Monumental Entrance
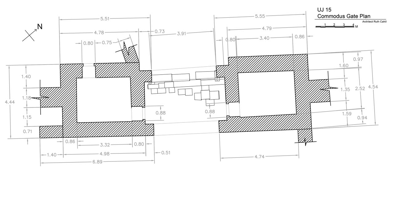
In ancient times Umm el-Jimal's monumental Commodus Gate was the town's main entrance. The gate is named after Lucius Commodus, co-ruler of Rome along with his father Marcus Aurelius from AD 177-180, after their names were discovered on an associated dedicatory inscription. (Archaeological research has confirmed the gate’s construction to the late 2nd century AD.) The gate was designed as a symbol of Rome’s power on the Arabian frontier. Located on the northwest edge of the main site, remains of an ancient road lead from the gate toward nearby Qasr Al-Ba’ij and the nearby Via Trajana—the major Roman highway running from Ayla (Aqaba) to Bostra.
Archaeological investigation of the Commodus Gate has helped uncover the story of life at Umm el-Jimal over several centuries. While not defensive in nature, the site’s original Roman perimeter wall connects to the gate and would have provided some security for animals and people. The gate survived Umm el-Jimal’s temporary destruction in the late 3rd century rebellion of Queen Zenobia against Rome, and soon after the road leading away from the site was repaved. Sometime in the 7th century AD (Late Byzantine or Umayyad periods) the road and part of the gate’s north tower were again resurfaced. This was most likely part of the general remodeling of the site at that time, as confirmed by other structures such as the Praetorium and the House XVII-XVIII complex.
Conservation
Today, the Commodus Gate is the primary intersection between Umm el-Jimal's modern community and its ancient town. In 2015-2016, a grant from the Sustainable Cultural Heritage through Engagement of Local Communities Project program by USAID and the American Center of Oriental Research made its conservation possible as part of the Umm el-Jimal Project's long term site plan—including the west entryway's coming development into a park connecting the city and site. Watch the slideshow above to find out about how the gate was conserved, and to see virtual reconstructions of how it likely appeared in antiquity.
How to Use this Media
While the slideshow plays by default, use the media player's other controls to navigate as you prefer. More slideshows about the House XVII-XVIII complex are coming soon.
The photo slideshow on this page is cross-platform compatible and should work on most media devices. To view them, however, you need to have enough Internet bandwidth and Javascript enabled on your device. (Don't worry, this is the default setting for most users.) For more information about the technology underlying this gallery, required computer plugins, and troubleshooting see the Help page.


Conserving the Gate
Find out more about the process of excavating, consolidating, and conserving the Commodus Gate by watching brief films in Site Conservation. For more about another of Umm el-Jimal's most prominent buildings, watch the Barracks clip in Short Films.









